Отдых в дубльдоме в подмосковье

Одноэтажная каркасная баня в стиле DublDom с размерами 11,35х13,76мм. Наружная отделка здания – металлический сайдинг. Фундамент – винтовые сваи D108. Наружные стены – стойки деревянного каркаса 45х145мм. + дополнительное утепление 50мм., утеплитель - Изорок Изолайт П50 - 200мм, обрешетка, имитация бруса. Внутренние стены и перегородки – деревянные стойки 95мм. Пол первого этажа — по деревянным балкам 45х195мм. Стропила - 45х195мм. с утеплением. Крыша двускатная. Кровля – металлочерепица. Окна — металлопластиковые.
Баню отличает удобная планировка, тамбур, комната отдыха, моечная, парная, холодное помещение под мастерскую. Идеально подходит к качестве недорогой компактной бани для семейного отдыха.
1. Чтобы определиться с ориентировочной стоимостью строительства дома по выбранному проекту, Вам следует обратиться по месту строительства в несколько строительных фирм с планами и фасадами понравившегося Вам дома. По ним опытные строители смогут рассчитать ориентировочную цену строительства за кв. м. Точную смету строители смогут посчитать после предоставления им полной проектной документации.
2. В каждом нашем проекте (в разделе КР) есть ведомость основных материалов на дом, на основании которой строительные фирмы произведут Вам расчет стоимости строительства дома под чистовую отделку, пример ведомости материалов можно посмотреть в разделе " Состав проекта ".
3. Стоимость строительства дома зависит от многих факторов. К факторам, влияющим на стоимость строительства, относится удаление участка от поставщиков строительных материалов, марка производителя материалов, состояние подъездных дорог, состав грунтов на участке, перепад рельефа, климатические условия и многое другое. Поэтому стоимость строительства по одному и тому же проекту может кардинально различаться в зависимости от региона строительства.
4. Средняя стоимость строительства каменного дома от 450-600у.е. за кв. м. площади (работа с материалами по возведению коробки под чистовую отделку), по деревянным домам около 250 - 350у.е. за кв. м. площади под чистовую отделку.
1. Фундамент в наших типовых проектах рассчитан чаще всего для Москвы и Московской области.
2. Для каждого проекта представленного на нашем сайте заложен свой тип фундамента. Чтобы узнать какой тип фундамента у проекта, откройте описание проекта.
3. Для каркасных домов применяется свайно-винтовой фундамент, в некоторых проектах идет ленточный или плитный фундамент (обычная плита или УШП)
Для домов из блоков и кирпича в основном применен ленточный или плитный тип фундамента.
4. Чтобы быть уверенным, что фундамент Вам подходит, нужно проводить инженерно-геологические изыскания почвы Вашего участка, и если потребуется корректировка, заказывать разработку проекта фундамента под Ваш участок.
Для того что бы купить проект дома Вам необходимо:
2. Нажать кнопку "Заказать проект" на странице интересующего Вас проекта, указать в примечаниях необходимую комплектацию, ФИО и телефон для оперативной связи.
3. После получения заявки наши специалисты свяжутся с Вами для обсуждения деталей заказа и вышлют Вам счет на оплату.
4. Оплатить проект можно любым удобным для Вас способом (Банковской картой, через отделение Сбербанка, на Яндекс Деньги, наложенным платежом и другими вариантами).
5. После получения оплаты мы автоматически отправляем Вам проект в электронном виде в формате PDF. При этом нет необходимости приезжать в офис, все делается удаленно через электронную почту не зависимо от того, где Вы находитесь.
6. Если Вам нужна печатная версия проекта, мы отправим для Вас проектную документацию курьерской службой. Доставка возможна в пределах Российской Федерации.
В любой проект на нашем сайте можно внести изменения.
Выберите проект, в который Вы хотели бы внести изменения:
1. Незначительные изменения в проекте, не влекущие за собой изменения объемно-планировочных и конструктивных решений, размеров и форм оконных и дверных проемов, сдвиг перегородок (не несущих), перенос камина и т.д. Такие изменения не требуют существенных финансовых затрат и обойдутся недорого.
2. Не стоит забывать, что большинство незначительных изменений дешевле, быстрее и проще воплотить в жизнь на стадии строительства, не внося изменения в типовой проект дома по договоренности с Вашей строительной организацией.
3. Существенные доработки проекта подразумевают внесение изменений в конструкции и планировки будущего дома (перепланировка со сдвигом несущих стен, добавление мансардного этажа, добавление цокольного этажа, подвала или гаража, внесение изменений в общую площадь дома). Их стоимость будет рассчитываться в зависимости от объема вносимых изменений.
4. Иногда, целесообразнее, разработать индивидуальный проект на основе выбранного Вами проекта или предоставленного эскиза. Или же выбрать похожий проект, внесение изменений в который будет менее затратным.
5. По Вашему желанию мы изменим архитектурный стиль дома и планировки, конструкцию стен, тип фундамента (в зависимости от грунтов Вашего участка и региона строительства), или внешнюю отделку любого готового проекта.
6. Самые популярные изменения в типовых проектах:
· Изменение материалов, толщин стен, внешней отделки
· Перепланировка в пределах несущих конструкций.
· Изменение размеров и форм оконных проемов.
· Изменение высоты потолков и мансарды
· Изменение расположения и перенос котельной.
· Перенос, добавление или удаление камина.
· Перенос и изменение назначения помещений.
· Адаптация проекта под регион строительства.
· Разработка и привязка фундамента к грунтам.
· Изменение габаритов дома и перенос несущих стен.
· Увеличение, добавление или удаление гаража.
· Добавление или удаление веранды, крыльца, террасы, бассейна.
· Добавление или удаление подвала или цокольного этажа.
7. В течение 1 рабочего дня мы проанализируем предоставленные Вами изменения по проекту и сообщим Вам сроки и стоимость выполнения работ.
1. В проектную документацию, предлагаемую на нашем сайте, входят все необходимые для строительства чертежи: планы, фасады, разрезы, конструктивные схемы, узлы, спецификации материалов.
2. На странице "Состав проекта" указан подробный состав, что входит в каждый раздел.
3. На каждой странице типового проекта указан доступный состав разделов, Вы сможете выбрать любую комплектацию проекта, отвечающую Вашим пожеланиям:
· Архитектурный раздел (АР)
· Архитектурно-строительный раздел (АР+КР)
· Инженерные сети (ОВ, ВК, ЭО)
Все типовые проекты домов, представленные на нашем сайте, разрабатываются для земельных участков с наиболее распространенными геологическими условиями Москвы и МО. Невозможно создать проект, одинаково подходящий под условия юга и севера России. Каждому региону характерны свои геологические и климатические особенности, влияющие на конструкцию дома, поэтому, практически все элементы дома могут быть подвергнуты изменениям.
Адаптация проекта – это привязка готового проекта к Вашему участку и определение возможности строительства дома в Вашей климатической зоне.
1. В ходе адаптации в готовый проект могут вноситься следующие изменения:
· Ориентация дома на участке, привязка плана дома под генеральный план Вашего участка.
· Адаптация фундамента к геологическим параметрам Вашего участка (требуются результаты геологических исследований почвы участка).
· Адаптация к климатическим условиям (снеговая нагрузка кровли, угол наклона крыши, конструкция стен и фундамента, сейсмичность).
· Адаптация инженерного раздела (канализация, водопровод, электричество, отопление) под параметры Вашего участка.
2 Ориентация здания на участке. Практически всегда требуется адаптировать готовый проект под конкретный участок, учитывая его план, инфраструктуру, соседние постройки, размещенные на участке, и пожелания заказчика.
3 Замена фундамента в готовом проекте может потребоваться, если на участке сложный грунт. Фундамент – один из самых дорогих элементов дома, и адаптация фундамента под климатические и геологические условия позволит существенно сэкономить Ваши средства и избежать многих неприятностей после строительства дома. Для адаптации необходимы результаты инженерно-геологических изысканий. Если изыскания отсутствуют, используются усредненные данные по региону, исходя из описания почвы заказчиком. Геологические данные конкретного участка могут отличаться от средних параметров, под которые может создаваться типовой проект. Нередко особенности грунтов различаются не только в разных районах, но и даже в пределах одного и того же населенного пункта.
4 Адаптация конструкций стен. Учитывая пожелания заказчика и климатические условия, а также выбранные материалы, можно пересчитать теплотехнические характеристики материалов стен и внести корректировки в проект.
Узнать стоимость адаптации или внесения изменений в понравившийся проект дома, Вы можете у наших специалистов.

В любой готовый проект на нашем сайте можно внести изменения.Выберите проект, в который Вы хотели бы внести корректировки:Незначи�.

Строительный паспорт проекта - это выдержка из архитектурного раздела. Он необходим для получения разрешения на строительство в местно�.

Адаптация проекта – это привязка готового проекта к Вашему участку и определение возможности строительства дома в Вашей климатической.

У нас Вы можете заказать индивидуальный проект коттеджа или дома, который максимально будет соответствовать Вашим представлениям об ую.

Инженерные системы - это комплексное техническое решение для бесперебойного функционирования жилых или производственных зданий,помещ�.

Экстерьер фасадов дома - это внешний дизайн дома, его художественное и архитектурное оформление. Основная функция экстерьера – это сдел.

Лично у меня, конечно (как и всегда) есть ряд вопросов и замечаний (например, типа не утепленного пола по умолчанию и т.п. "мелочей"), но в целом, бизнес-модель имеет место быть, тем более, что у ребят регионы уже начинают рвать франшизу, а сами у самих ребят, похоже, отбоя нет от клиентов )))
Безусловно, стройка в цеху позволяет на высоком уровне контролировать процесс производства, а доступность инструментов и возможность разделения рабочих процессов позволяет делать это не только качественно, но и быстро ))
Бизнес-модель простая: из меленького недорогого домика Вы можете со временем "вырастить" полноценный дом для загородного проживания. Дома делаются "под ключ" в цеху и доставляются на участок. Площадь от 26 до 130 кв.м, цены около 40'000 рублей за кв.м (37,5-42тр). Фундамент и доставка - за дополнительные деньги ))
Компания Дубльдом


Иван Овчинников (автор проекта) и Владимир Кириченко (директор по развитию) "продвигают" ДубльДом в регионы ))

Дом над рекой
История Виктора, уехавшего жить из Москвы в Калужскую область: "Это дом, котоый разбивает шаблон о том, как можно жить за городом, шаблон о даче, о втором доме, об основном доме, о коттедже и так далее. Наверно, это дом из мечты, дом из хорошего кинофильма со счастливым концом" ))))
=
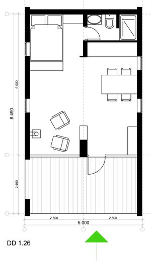
Именно с ДубльДома на 26 кв.м началось производство ДубльДомов в 2014 году. Дом рассчитан на круглогодичное проживание 1-3 человек.
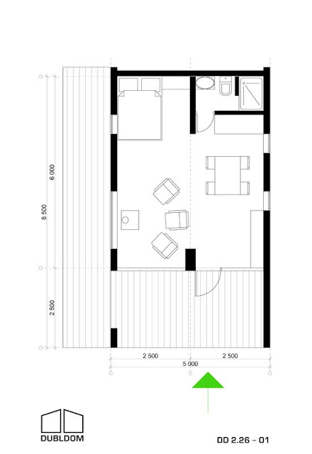
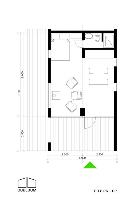
Во второй версии появилось боковое остекление + деревянная отделка бокового фасада, усиленные стеклопакеты с i-напылением.
ДД 1.26







ДД 2.26 (доступен с 21 февраля 2016)























- Получить ссылку
- Электронная почта
- Другие приложения
Ярлыки
- Получить ссылку
- Электронная почта
- Другие приложения
Комментарии
Теплый пол своими руками супердешево
"Курю" тему теплых полов. На сегодня это одно из самых эффективных решений для обогрева: КПД 100%, возможность регулирования температуры в зависимости от сезонности, пожаробезопасность, энергоэффективность. Никакого геморроя с дровами-горючкой-углем, с обустройством котельной и т.п. спецпомещений, с подключеним газа и т.п. Плюс, можно отапливать только те помещения, которые используются, не тратясь на прогрев всего дома, если какие-то комнаты не используются. Возможность дистанционного запуска-отключения, например, если это дача и хочется туда приехать на выходной в теплый дом. На случай отключения электричества - запускаем дизельгенератор. В перспективе можно потихоньку выстраивать модуль для питания от солнечных батарей. Один минус - цена. От 1-1.5-2тр за квадратный метр. Попробуем покурить эту тему!
Есть на Ютубе канал СтройХлам. Канал достойный и интересный, где ведущий выезжает на объекты и рассказывает о всех минусах и плюсах малоэтажного строительства.
Честно признаться сам на нем залипаю часами. Но сейчас о другом.
Влияние Ютуб роликов на репутацию бренда огромно, и если какой то канал публикует негатив, то 100% все кто интересуются вашей темой, увидят его в будущем.
Какая реакция на просмотр этого ролика будет у клиентов зависит от ваших дальнейших действий.

В данном обзоре мы покажем на живом примере, что происходит после выхода подобных роликов на Ютубе… реакцию руководства компании на негатив, сохранив последовательность публикаций материалов.
Часть 1. Кто шатал ДубльДом?
Вся заваруха началась с публикации каналом СтройХлам, неоднозначный ролик на своём канале: Дубльдом. Вся правда про сарай-аквариум. Стройхлам. Отзывы.
1. Дата выхода выпуска 8 декабря 2017 года, видео ниже:
Кто не видел ролик, расскажу кратко о чем он: Ребята из СтройХлама арендовали дом построенный компанией Дубльдом, на базе отдыха Кошкинский Фарватер , прожили день и поделились своими ощущениями и отзывами о нем.
Рассказали в красках про те проблемы, которые им показались важными и пришли к выводу, что ДубльДом не подходит для круглогодичного проживания.
Название видео говорит само за себя: сарай-аквариум.
В комментариях, сразу после публикации появилось куча экспертов, которые всё-всегда знают))
К любому ролику, независимо от сюжета… про добро или зло, найдутся люди которые будут извергать желчь… это нормальное явление)
Отключаем эмоции и отрабатываем негатив. Только так!
Это важно… с блогерами воевать стоит дорого. Пример Тинькова, еще на слуху) В таких случаях действовать нужно без эмоций, угроз, оперативно и продумывать каждый шаг на перед. Потому что с вашего ответа начинается игра в шахматы.
Как бы, не было обидно для компании, но директор ДубльДома поступил достойно… и записал адекватный ответ на этот ролик.
2. Ответ ДубльДома опубликован 9.12 на следующий день после выхода негативного обзора:
Ответ получился позитивный и что самое важное в таких случаях оперативный, все моменты которые Стройхлам выставил в негативе, Нияз объяснил и показал почему так, причем достойно и логично.
Ответ отличный, можно смело вставить в учебники по отработке негатива в Ютубе, как пример)
Да он забыл про полы… но добавил свой коммент на этот счет под видео. Вот он:
Но адекватности хватило не надолго… и в комментариях пошел переход на личности со стороны представителя компании.
Если вы не Торшина, это делать крайне опасно… Уверены что потенциальный клиент не воспримет эту фразу на свой счет?
Результат кривой работы в комментариях не заставил себя ждать… Стройхлам снимает второй сюжет, где анонсирует ужас-ужасный.

И рекомендуют запастись попкорном… игра началась)
Пока Стройхлам молчит… Нияз дежурил в соцсетях и явно это сказалась на его дальнейших действиях… в комментариях народ просил показать видео с тепловизором… где будет видно температуру дома по полу и стенам.
И такое видео выходит спустя месяц… это не оправдано долго.
3. Выход видео с исследованием 2 домов г. Казань — 12 января 2018
Нияз выглядит немного взволнованным и видео получается скомканным… местами не логичным и записанным на скорую руку. Конечно руководитель предупреждает об этом вначале… но тем не менее, время для подготовки было.
Хорошо, что с роликом успели до Стройхлама.
Большинство сказало бы, ну все понятно… и на этом все, мнение сложилось.
Часть 2. Результат выхода ролика в цифрах
Любой ролик на Ютубе вызывает волну интереса к компании, о которой упоминали в видео. Народ идет искать компанию, чтобы посмотреть кто это такие.
И вот тут, как раз важно, встретить трафик позитивным роликом с обоснованием своей позиции. Как мы помним, ДД опубликовал достойный ответ Стройхламу и это привело к следующим цифрам.

На 15.01.17 на канал подписаны 2146 человек.
Ролик вызвал интерес к данной технологии, и о ДубльДоме узнали даже те, кто его не знал… причем это 100% целевая аудитория. Его смотрят сейчас и будут смотреть, все кто заинтересуется модульным строительстве в будущем.
Повлиял ли ролик на запросы в поисковых системах?
Для получения данных обратимся к статистике: Яндекс вордстат

Как видно из графика, начиная с 8 декабря (дата выхода ролика от Стройхлама) идет рост кол-ва запросов. В общей сложности в декабре пользователи забивали в поиске Дубльдом — 8000 раз.
Но много это, или мало?
В сравнении с ноябрем где было 9300 запросов (зеленая зона) конечно меньше, это видно по графику.
Мы посмотрели, что же в ноябре привело к всплеску интереса… неужели еще кто то вбросил негативный отзыв? Оказалось, нет… на этот раз, для дубльдома прошло все хорошо)
Обозначим 3 значимых упоминания компании, в ноябре 2017:
Таким образом, один негативный ролик со Стройхлама дал Дубльдому практически сравнимое кол-во запросов. Это показывает уровень силы негативных видео роликов.
Важно понимать что подобный ролик, 100% посмотрят все потенциальные покупатели в будущем!
Тем не менее, при продуманной реакции на негатив, влияние можно свести к минимуму и даже перевести из минуса в плюс, главное последовательность и правильные действия!
Часть 3. Что можно сделать по другому?
Как отмечалось выше, ответ компании на негатив был идеальным, с юмором и логично выстроен. Но дальше… опасная тишина в месяц.
Как можно было использовать тишину с пользой для себя?
Тишина это идеальное время пропиарить себя, причем для этого созданы все условия, народ ждет зрелища, дайте им их)
Работа в комментариях:
Сейчас ТОП комментариев к видео от Стройхлама выглядит так:
И этот список продолжают с десяток негативных реплик в сторону компании…
Что можно сделать по другому?
Таким образом за месяц, можно создать целую доказательную базу, готовую к приему новой порции негатива.
Часть 4. Вторая серия от Стройхлама…
19.01.2018 Стройхлам в своей группе ВК анонсирует выход второй серии…
Трейлер не обещает, ни чего хорошего Дубльдомовцам…
И руководитель появляется в комментариях к посту… с просьбой снимать побольше видео про ДубльДом… Зачем это все?
Мы уже говорили, что каждый комментарий-обращение в таких случаях несет четкую Цель и просчитываются все возможные варианты ответа.
Какая цель была здесь?
21 января 2018 Стройхлам выполняет свое обещание, выпустив 2 серию про Дубльдом:
Как и ожидалось, эта серия получилось совсем печальной для компании… кто не видел посмотрите, если кратко, то это полный разгром. Мы лишь прикрепим комментарии зрителей под видео.

В ВК пошли зарисовки
Можно ли данную серию роликов считать ударом по репутации?
Однозначно ДА.
Спустя неделю, появляется официальный ответ Дубльдома где-то внизу под толщей из 1000 комментариев…
С ответом все печально… да по делу… да признали ошибки… но кто его увидит?
Ключевая ошибка — нет стратегии работы с негативными вбросами, что приводит к вынужденной работе по факту негатива, а не на опережение.
P.S. И на последок про заказные отзывы

Как мы видим из ТОП 12 Яндекса, только 2 площадки в позитиве, причем это собственные ресурсы + свой канал. Остальные площадки нейтральны к бренду и 2 в негативе.
Что же пишут про ДубльДом?
Ощущение запущенности и безразличия компании к отзывам… только на Forumhouse идет какое-то общение.
Кто-то постит веселые картинки…
Кто-то спрашивает… но ему не отвечают… маркетологи ааауууу… где вы?)
Или вот пример… подробный отзыв с оценкой 3 и он один на отзовике… писать о себе одинокие отзывы в таком формате, как минимум глупо.
Единственное что мы увидели, это появление некоторых персонажей на Форумхауз… но опять же со 100% уверенностью сказать, что это заказуха нельзя.
Отсюда напрашивается логичный вывод: Дубльдом с отзывами не работает… их нет на отзовиках, по всей выдаче лишь сплошные негативные предположения.
Отзывы самое слабое место в маркетинге компании, потому что достаточно небольших вбросов со стороны конкурентов и ДубльДом уйдет в красную зону. Более того продвинутые конкуренты смогут за счет негатива в сторону ДубльДома, увеличить свои продажи.
Поэтому, смотрите что про вас пишут, выстраиваете защиту бренда и чем раньше тем лучше!
Позволяет наслаждаться природой, визуально расширяет пространство, увеличивает естественное освещение внутри дома.
Отделочные работы под ключ, инженерные коммуникации разведены, вам останется только подсоединить их к внешним сетям.
Вентиляционный клапан, тёплые полы в ванной комнате. Ванная комната: умывальник, ванна, смесители, унитаз, бойлер. Печь.

Позволяет наслаждаться природой, визуально расширяет пространство, увеличивает естественное освещение
внутри дома.

Отделочные работы под ключ, инженерные коммуникации разведены, вам останется только подсоединить их к внешним сетям.
Вентиляционный клапан, тёплые полы в ванной комнате. Ванная комната: умывальник, ванна, смесители, унитаз, бойлер. Печь.
Почему ДубльДом в Lopotovo Park?



61;10,88 сот.;6 610 000 ₽;7 510 000 ₽;9 110 000 ₽ 63;14,77 сот.;7 582 500 ₽;8 482 500 ₽;10 082 500 ₽ 64;15,81 сот.;7 842 500 ₽;8 742 500 ₽;10 342 500 ₽ 82;6,28 сот.;5 460 000 ₽;6 360 000 ₽;7 960 000 ₽ 83;7,18 сот.;5 685 000 ₽;6 585 000 ₽;8 185 000 ₽ 84;7,6 сот.;5 790 000 ₽;6 690 000 ₽;8 290 000 ₽ 85;13,55 сот.;6 357 500 ₽;7 257 500 ₽;8 857 500 ₽ 88;13,66 сот.;6 440 000 ₽;7 340 000 ₽;8 940 000 ₽ 89;7,75 сот.;5 827 500 ₽;6 727 500 ₽;8 327 500 ₽ 101;9,53 сот.;6 272 500 ₽;7 172 500 ₽;8 772 500 ₽ 102;14,77 сот.;6 645 000 ₽;7 545 000 ₽;9 145 000 ₽
61;10,88 сот.;6 610 000 ₽ 63;14,77 сот.;7 582 500 ₽ 64;15,81 сот.;7 842 500 ₽ 82;6,28 сот.;5 460 000 ₽ 83;7,18 сот.;5 685 000 ₽ 84;7,6 сот.;5 790 000 ₽ 85;13,55 сот.;6 357 500 ₽ 88;13,66 сот.;6 440 000 ₽ 89;7,75 сот.;5 827 500 ₽ 101;9,53 сот.;6 272 500 ₽ 102;14,77 сот.;6 645 000 ₽
61;10,88 сот.;7 510 000 ₽ 63;14,77 сот.;8 482 500 ₽ 64;15,81 сот.;8 742 500 ₽ 82;6,28 сот.;6 360 000 ₽ 83;7,18 сот.;6 585 000 ₽ 84;7,6 сот.;6 690 000 ₽ 85;13,55 сот.;7 257 500 ₽ 88;13,66 сот.;7 340 000 ₽ 89;7,75 сот.;6 727 500 ₽ 101;9,53 сот.;7 172 500 ₽ 102;14,77 сот.;7 545 000 ₽
61;10,88 сот.;9 110 000 ₽ 63;14,77 сот.;10 082 500 ₽ 64;15,81 сот.;10 342 500 ₽ 82;6,28 сот.;7 960 000 ₽ 83;7,18 сот.;8 185 000 ₽ 84;7,6 сот.;8 290 000 ₽ 85;13,55 сот.;8 857 500 ₽ 88;13,66 сот.;8 940 000 ₽ 89;7,75 сот.;8 327 500 ₽ 101;9,53 сот.;8 772 500 ₽ 102;14,77 сот.;9 145 000 ₽

Настоящая Политика конфиденциальности применяется к (веб-ссылка) (далее САЙТ). Изучив этот САЙТ, прочтите текст, содержащий политику конфиденциальности используемого сайта. Если вы несогласны с этой политикой конфиденциальности, прекратите использование этого сайта.
Заполняя любую из форм и используя сайт, вы соглашаетесь с условиями Политики конфиденциальности, приведенной ниже. Сайт защищает конфиденциальность посетителей сайта.
Чтобы мы могли предоставить вам услуги, ответить на вопросы, выполнить ваши пожелания и требования, вам потребуется такая информация, как ваше имя, номер телефона. САЙТ может использовать предоставленную информацию для ответа на запросы, а также для связи с вами для предоставления информации об услугах, предлагаемых САЙТОМ и рекламными компаниями. Когда вы получаете от вас запрос на отправку любой формы, заполненной на САЙТЕ, вам может потребоваться связаться с вами для получения дополнительной информации, необходимой для ваших услуг, и для ответа на ваши вопросы. САЙТ обязуется не передавать эту информацию третьим лицам без вашего согласия, за исключением информации, необходимой для вашего обслуживания. Вы предоставляете САЙТУ право использовать любую предоставленную вами информацию для выполнения вышеуказанных действий.
Передача персональных данных в любой форме (лично, по телефону или через Интернет) всегда связана с определенным риском, так как существуют абсолютно надежные системы (защищенные от злонамеренных атак), но САЙТ принимает необходимые соответствующие меры для минимизации риска и предотвращения несанкционированного доступа, несанкционированного использования. и искажение вашей личной информации.
САЙТ имеет право изменять настоящую Политику конфиденциальности, изменять и изменять условия доступа или отказывать в доступе к сайту, а также изменять его содержание в любое время без предварительного уведомления.
Представленные на сайте материалы не ;являются публичной офертой, они носят исключительно информационный характер.
Читайте также:


